PRODANO

Površine                       

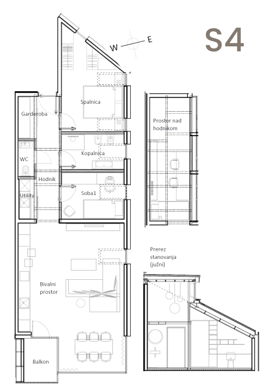
Spalnica

Kopalnica

Soba 1

Hodnik

Bivalni prostor

Garderoba

WC

Utility

Stanovanje

Balkon

Shramba

Bruto površina

Parkirišči

m2

14,7

6,0

8,2

7,5

40,4

2,2

1,6

1,7

82,2

5,3

4,7

92,3

26,0

kvadratnih metrov
parkirišči
SHRAMBA
SOBE

Pogled iz jedilnice

Prejmite ponudbo

    B162 d.o.o.

    VILA BRDO

    4 stanovanjski objekt v soseski ljubljana brdo