Izberite stanovanje

Izberite stanovanje

kvadratnih metrov
parkirišč
stanovanja
etaže

Cesta na brdo 162, 1000 Ljubljana

ljubljana vič BRDO

BRDO

Soseska Ljubljana Brdo velja za eno izmed najbolj zaželenih sosesk v Ljubljani, na tem območju pa jeizjemno majhna ponudba kakovostnih nepremičnin.Tipologija vaškega zaselka se vztrajno spreminja vobmočje manjših večstanovanjskih objektov insodobnih eno in dvostanovanjskih hiš. Dostop domesta in mestnih vpadnic je izjemno enostaven. Oddaljenost do mestnega jedra z avtomobilom alikolesom je 10-15 minut, z mestno linijo LPP 14 okvirno20 minut. Dostop do mestnih vpadnic je enostaven, uporablja se lahko izvoz Brdo ali Dolgi most.

Bližina javnega prevoza

Postajališče in LPP linija 14 - 70m

Parkirna mesta

Več kot 20 parkirnih mest v bližni okolici za obiskovalce

Bližina narave

Okolica ponuja veliko sprehajalnih in kolesarskih poti v naravi.

Bližina šole in vrtca

Vrtec Brdo - 150m, Osnovna šola Vrhovci - 400m

Bližina trgovskega centra

Najbližja trgovina je od Vile Brdo oddaljena 70m

Bližina avtoceste

AC izvoz Brdo in AC izvoz VIČ v bližini

ČASOVNICA

e
2022 JUL

PRAVNOMOČNOST GRADBENEGA DOVOLJENJA

e
2022 NOV

POTRDITEV PROJEKTOV ZA IZVEDBO

e
2023 MAR

POGOJI ZA PRODAJO

e
2023 NOV

Začetek gradnje

e
2024 AVG

ZAKLJUČITEV 3. GRADBENE FAZE

e
2024 DEC

ZAKLJUČEK GRADNJE

OPIS

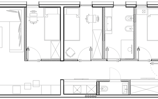
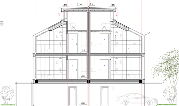
V 1. nadstropju se v vsaki enoti nahajata zrcalni stanovanjski enoti. Na S strani se nahaja vhod, od tam se preko hodnika nizajo spalnica, kopalnica in pa otroški sobi. Ob notranji neosvetljeni strani se nahajajo pomožni prostori, garderoba, wc in utility. Hodnik se odpre v kuhinjsko bivalni del na J delu objekta z ložo. Skoraj identična razporeditev prostorov se ponovi v etaži izkoriščenega podstrešja v obeh enotah dvojčka, le da je tam ena soba manj in zato tam večja tlorisna površina namenjena dnevnobivalnemu delu s kuhinjo. V etaži Po je predvidena frčada, ki bo omogočala dodatno svetlobo dnevnemu prostoru, glede na notranjo višino skoraj 5m pa ponuja tudi možnost izdelave galerije (v lastni režiji).

Večji del fasade bo prekrit s pločevinasto prezračevano fasado. Enak zaključni material bo uporabljen za strešno kritino. Fasade na območju parkiranja in na balkonih bodo zaključene s tankoslojno kontaktno fasado.

 

Okna in balkonska vrata bodo izdelana iz alumijastih prašno barvanih profilov. Zastekljena bodo s troslojnim izolacijskim steklom. Na južni fasadi bodo v okna vgrajena selektivna stekla. Zunanje senčenje ni predvideno. Za notranje senčenje bo izvedena instalacija za postavitev zatemnitvenih screenov ali zaves na motorni pogon.

Prejmite ponudbo

    NUDIMO VAM MIREN IN VAREN DOM

    B162 d.o.o.

    VILA BRDO

    4 stanovanjski objekt v soseski ljubljana brdo